407 840 BYN /
139 000 USD
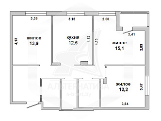
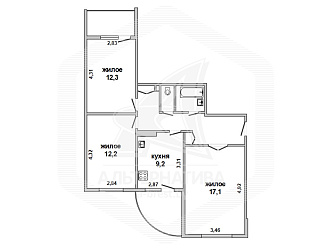
86 / 81 / 47 / 12.5 м²
11 / 17 ж/б каркас_блок_кирпич
2015 г.п.
Код объекта - 252135
Трехкомнатная квартира
г. Брест » ВУЛЬКА
ул. Краснознаменная
