87 810 BYN /
30 000 USD
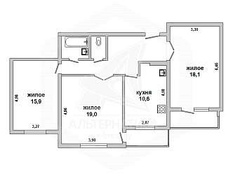
51 / 44 / 34 / 9.9 м²
1 / 1 кирпич
1957 г.п.
Код объекта - 951888
Трехкомнатная квартира
г. Брест » КИЕВКА
ул. Скрипникова
