217 547 BYN /
73 000 USD
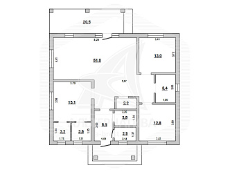
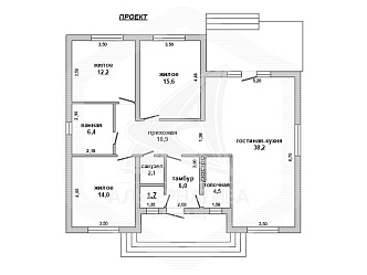
115 / 93 / 45 / 8.7 м²
1 этаж
Площадь участка - 5 сот.
Код объекта - 951876
Дачный дом жилого типа
Брестский р-н
Домачевское направление
