545 358 BYN /
183 000 USD
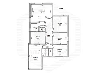
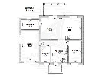
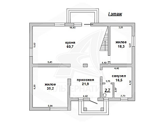
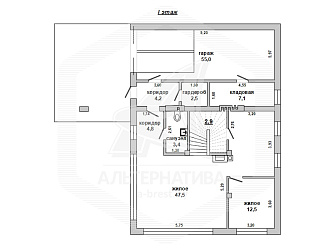
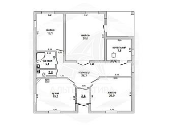
218 / 191 / 96 / 16.2 м²
1 этаж + мансарда
Площадь участка - 29.83 сот.
Код объекта - 250323
Индивидуальный жилой дом
Брестский р-н
Высоковское направление
